$2,200
 $12 est/mo Sourced by Back At You

12 Wesleyan Street 6,Halton Hills, ON L7G 2E1

Halton Hills, ON L7G 2E1

Share:

Description

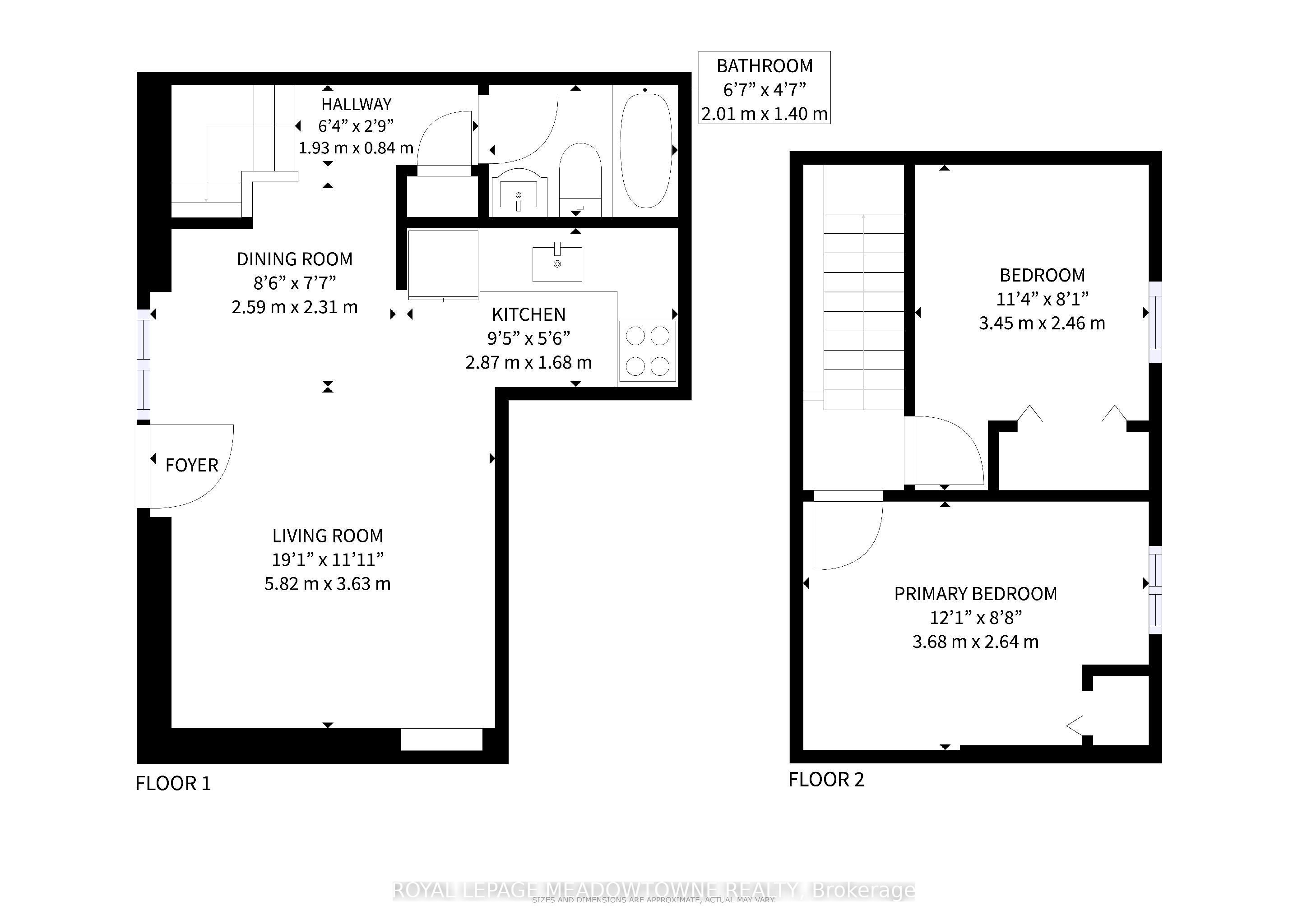
Apartment in Downtown Georgetown - Ready for Immediate Occupancy. Located in the heart of Downtown Georgetown, this spacious 2nd-floor two bedroom / 1 bath apartment is accessed through a ground floor fenced patio area. Open concept main floor with a generous kitchen, living, and dining area. The kitchen is equipped with a fridge and stove. Coin-operated laundry is available on-site for your convenience. This non-smoking building consists of multiple residential units and is not suitable for pets. Ideal for a couple or small family, the unit includes one designated parking spot. Electricity (hydro) is added as a flat fee of $100.00 per month in addition to the base rent. Additional parking may be available in the public lot on Wesleyan street through a paid parking pass from the Town of Halton Hills for the Tenants to purchase/arrange at their own expense. Enjoy the convenience of being just a short walk to Main Street's shops, restaurants, and the local Downtown events and farmers' market. A nearby GO Bus stop adds to the ease of commuting.

Details

MLS #W12383411
Listing TypeFor Lease
StyleHouse
StatusNew
Year0
Days On Site64
Listing Provided ByROYAL LEPAGE MEADOWTOWNE REALTY | W12383411 108801

Features

Bed(s)2
Bath(s)1
Story(s)2
Property ViewDowntown, Trees, Woods, Garden

Interior

Interior FeaturesCarpet Free, Separate Heating Controls
CoolingNone
Heat SourceGas
Fireplace Yes / NoNo
Laundry FeaturesCoin Operated, Common Area, In Building, Laundry Room, Shared
FurnishedUnfurnished

Exterior

Exterior FeaturesPatio, Year Round Living
RoofAsphalt Shingle
Foundation DetailsNot Applicable
TopographyFlat, Level
ViewDowntown, Trees/Woods, Garden
Construction MaterialsVinyl Siding
Security FeaturesCarbon Monoxide Detectors, Smoke Detector

Parking

Garage Yes / NoNo
Parking FeaturesAvailable, Reserved/Assigned

Utilities

SewerSewer

Area Information

ProvinceON
CountyHalton
CityHalton Hills
Postal CodeL7G 2E1
AreaGeorgetown
Sourced by Back At You

Request a showing

Request a showing

Loading Form
MLS Internet Data Exchange (IDX) information is provided exclusively for consumers’ personal, non-commercial use and may not be used for any purpose other than to identify prospective properties consumers may be interested in purchasing, and that the data is deemed reliable but is not guaranteed accurate by the Toronto Real Estate Board.

Contact

Learn More About This Property

ProvinceON
CountyHalton
CityHalton Hills
Postal CodeL7G 2E1
AreaGeorgetown
Sourced by Back At You
Nearby Listings (Within 1/10 mile)
Price: $1K - $2K
sqft: 0 - 0
Nearby Listings Property ImageNearby Listings Details
12 Wesleyan Street 5 Property Photo 1
$2,300
12 Wesleyan Street 5
Halton Hills, ON L7G 2E1
12 Wesleyan Street 1 Property Photo 1
$2,200
12 Wesleyan Street 1
Halton Hills, ON L7G 2E1
Listing Updated: November 4, 2025 at 4:16:16 PM PST